ECO

transformation de deux logements de fonction - écouen - études en cours - monument historique

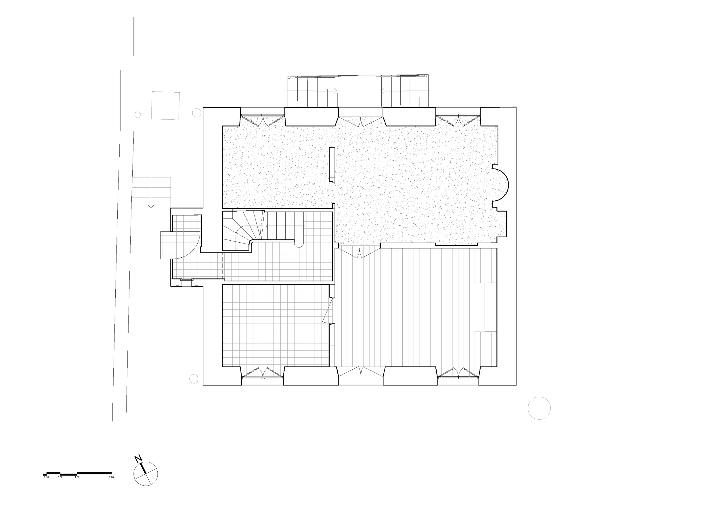
Le Musée National de la Renaissance, hébergé dans le somptueux Château d’Ecouen, jadis résidence des Rois de France puis Maison des Demoiselles de la Légion d’Honneur créée par Napoléon, souhaite réhabiliter sa Maison des Jardiniers érigée durant la seconde moitié du XIXème siècle, également classée Monument Historique par arrêté du 18 juillet 2007.

Dans la continuité des travaux de restauration du clos-couvert opérés par l’Architecte en Chef des Monuments Historiques Régis Martin en 2023, le projet prévoit l’aménagement de deux logements de fonction qui seront attribués aux jardiniers du Château, restituant ainsi sont usage premier au pavillon habillé d’enduit jaune.

Le T2 et le T3 proposés disposent de deux accès distincts pour le confort et l’intimité des habitants ; cependant, le dessin intègre un potentiel de réversibilité par des mesures conservatoires spatiales et techniques en vue d’une mutualisation possible des deux logements à moyen terme.

  • mission : complète

  • statut : en cours d’études

  • lieu : écouen

  • maître d’ouvrage : musée national de la renaissance

  • économiste + bet fluides : gica

  • bet structure : poco

  • photographies : lume architectes

Précédent
Précédent

SOL

Suivant
Suivant

SER