ROM

transformation et surélévation d’une maison - porto vecchio - études en cours - secteur ABF

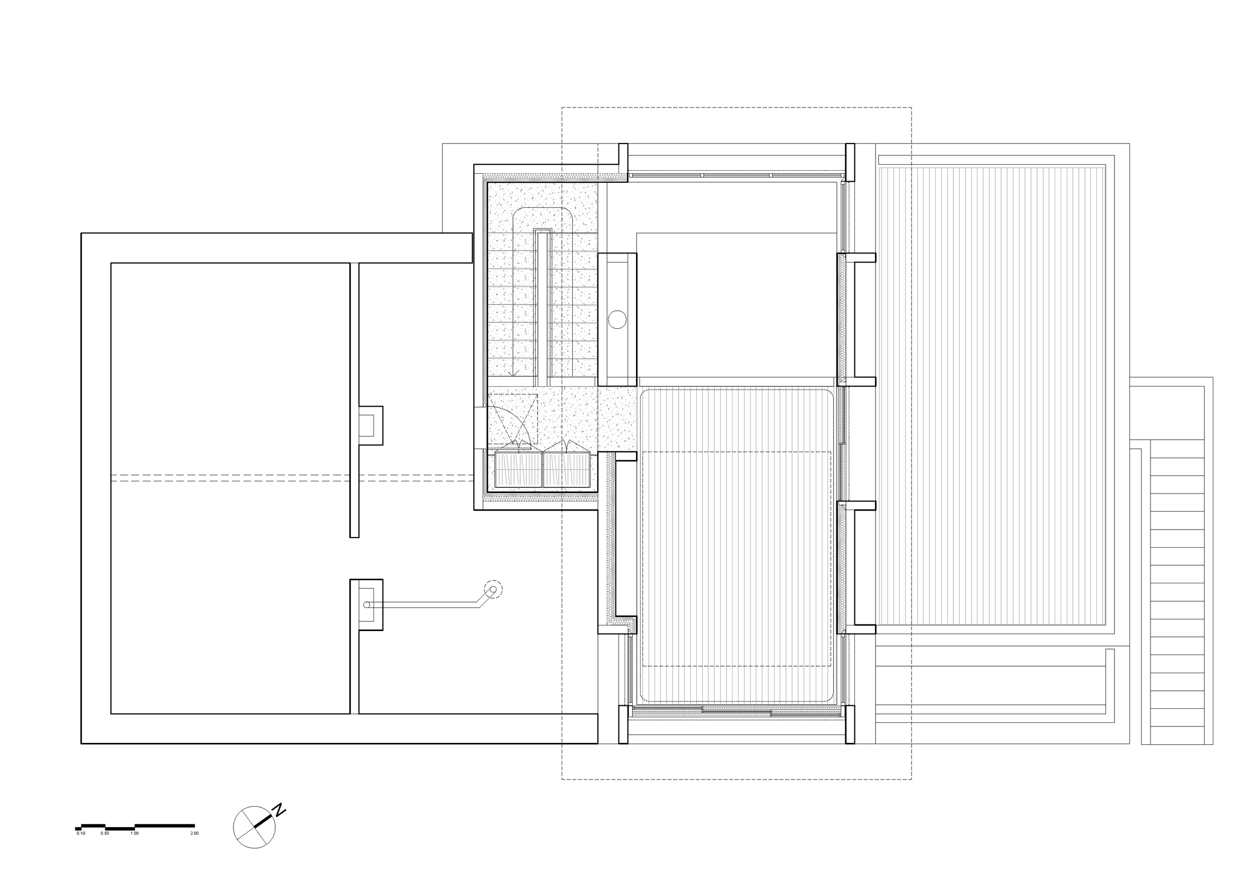
Le projet consiste à transformer et surélever une maison familiale en pierre, posée au milieu d’un jardin parsemé de blocs de granit caractéristiques du paysage du golfe de Porto Vecchio. Notre approche commence d’abord par un travail d’archive pour retrouver les circulations et les trames originelles que le projet propose de faire réémerger.

Le rez-de-jardin, originellement conçue pour des pièces secondaires de stockage et de vide sanitaire, est entièrement remanié en sous œuvre, pour y aménager des chambres et leurs pièces d’eau. Les façades sont largement ouvertes pour faire entrer la lumière et surtout, pour retrouver des relations avec le jardin par des accès de plain-pied depuis chaque pièce.

La surélévation, à la manière d’une villa belle époque, est pensée comme un belvédère construit au dessus de la cime des arbres, et donnant accès à un solarium. De la haut, le grand paysage se dévoile, et au loin, la mer apparait.

  • mission : complète

  • statut : en cours d’études

  • lieu : porto vecchio

  • maître d’ouvrage : privé

  • bet structure : poco

  • photographies : lume architectes

  • images : superbueno studio

Précédent
Précédent

VRN

Suivant
Suivant

MID